Kursus AutoCAD Outdoor di Indomaret Point Tebet Jakarta Selatan
Pelaksanaan kursus autocad 2 dimensi di indomaret point tebet jakarta selatan telah selesai. Hari yang dipilih peserta adalah hari sabtu sore sampai malam. Jadwal di atur setelah saya mengisi materi dengan peserta lain di wilayah tebet pula, jadi deket lokasi peserta jam pagi-siang dengan peserta jam sore-malam.
Peserta terkadang datang di jadwal belajar autocad yang berlokasi di lubang buaya.. karena sering ada tugas dari tempat kerjanya, maka untuk mengejar ketertinggalan materi diadakan jadwal belajar yang berlokasi di tebet agar lebih dekat.
Karena peserta terkadang ada jadwal tugas di hari sabtu, selepas menyelesaikan tugasnya baru datang ke lokasi… hehehe perjuangan ya bos panas-panasan dijalan….
Beginilah nuansa saat selesai belajar autocad… biasanya setelah lalu lintas sudah tidak terlalu macet, baru selesai belajarnya.
Dipilih lantai 2 Indomaret Point karena ada fasilitas power outlet.. dan tidak terlalu bising dengan kondisi jalanan yang biasanya macet dengan berbagai macam kendaraan pribadi dan umum.
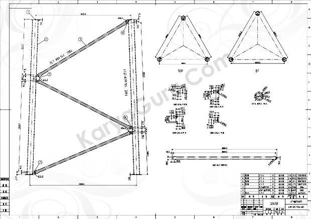
Materi menyesuaikan kebutuhan peserta, lebih ke bentuk konstruksi tower telekomunikasi dengan berbagai model… nah perserta terkadang membawa hasil corat-coret bosnya dari desain yang dibutuhkan dengan berbentuk gambar manual… nah sebagai bahan latihan di buat saja gambar sketsa tersebut menjadi gambar di AutoCAD.
Berikut materi gambar yang dibuat oleh peserta :
………………………………………………………………………………………………………………
Berikut kursus CAD yang sudah selesai dilaksanakan
(klik untuk membaca ulasan setiap kegiatan!!!)
![]()
………………………………………………………………………………………………………………
Belajar Gratis Tutorial AutoCAD Dasar
- Rendering Rumah Bertingkat Bagian 1 – Pemilihan Material
- Rendering Rumah Bertingkat Bagian 2 – Penerapan Material
- Rendering Rumah Bertingkat Bagian 3 – Posisi Kamera
- Rendering Rumah Bertingkat Bagian 4 – Konfigurasi Rendering
- Rumah Tinggal Bagian 1 – Denah
- Rumah Tinggal Bagian 2 – Tampak Depan dan Belakang
- Rumah Tinggal Bagian 3 – Tampak Samping Kanan dan Kiri
- Rumah Tinggal Bagian 4 – Pondasi Batu Kali
- Rumah Tinggal Bagian 5 – Potongan A-A
- Rumah Tinggal Bagian 6 – Potongan B-B
- Rumah Tinggal Bagian 7 – Potongan C-C
- Pos Jaga Bagian 1 – Denah
- Pos Jaga Bagian 2 – Atap
- Pos Jaga Bagian 3 – Tampak Belakang
- Pos Jaga Bagian 4 – Tampak Depan
- Pos Jaga Bagian 5 – Tampak Kiri Kanan
- Pos Jaga Bagian 6 – 3 Dimensi
- Pos Jaga bagian 7 – Rendering
- Tugas CAD 1 – Circle – Trim (RockerArm)
- Tugas CAD 2 – Polygon, Circle, Line, Copy, Trim, Array
- Tugas CAD 3 – Circle, Line, Copy, Trim, Move, Rotate
- Tugas CAD 4 – Region, Extrude, Subtract, Fillet
- Tugas CAD 5 – Box, Wedge, Cylinder (CrusherKnife)
- Tugas CAD 6 – Sphere, Cylinder, Cone, Box
- Fillet 3D
- Sambungan Kayu – Bibir Lurus
………………………………………………………………………………………………………………
Tutorial Building Information Modeling (BIM) untuk Pemula
Pemodelan 3D Jembatan Gelagar Beton Bertulang
Penulangan Pelat Lantai Kendaraan Jembatan 25 meter
Pembesian Dinding Sandaran Jembatan Beton Bertulang 25m
Detail Tulangan Balok Gelagar Induk Jembatan 25 meter














































































































Leave a comment