Tutorial DraftSight – Gambar Sambungan Kayu Bibir Lurus
Tutorial DraftSight membuat gambar sambungan kayu bibir lurus dengan perintah LINE akan di bahas berikut ini, mulai dari pembuatan tampak depan dan samping serta perspektif. Obyek sambungan kayu bibir lurus diambil dari buku sekolah elektronik (BSE) Teknik Gambar Bangunan Jilid 2 karangan Suparno. Semua langkah di bawah ini dapat pula di terapkan di AutoCAD.
Ayo kita mulai…
A. TAMPAK DEPAN
Ketikan perintah-perintah di bawah ini satu persatu untuk membuat tampak depan gambar sambungan kayu bibir lurus.
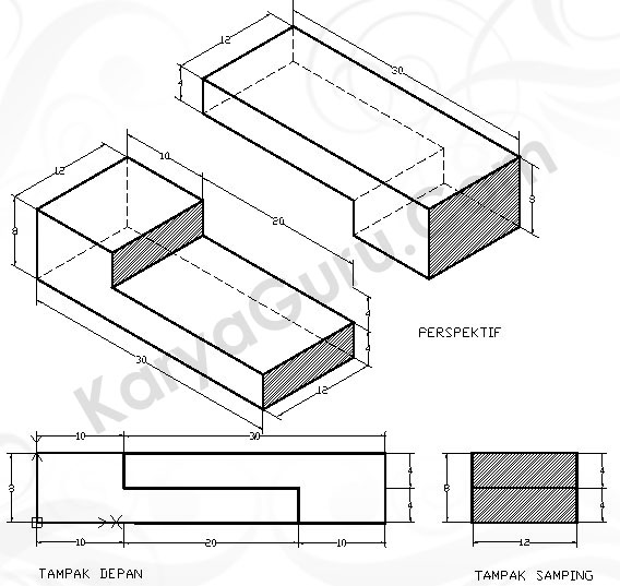
LINE <enter>
0,0 <enter>
@30<0 <enter>
@4<90 <enter>
@20<180 <enter>
@4<90 <enter>
@10<180 <enter>
0,0 <enter><enter>

LINE <enter>
30,0 <enter>
@10<0 <enter>
@8<90 <enter>
@30<180 <enter><enter>
B. TAMPAK SAMPING
Ketikan perintah-perintah di bawah ini satu persatu untuk membuat tampak samping gambar sambungan kayu bibir lurus.
LINE <enter>
50,0 <enter>
@12<0 <enter>
@4<90 <enter>
@12<180 <enter>
50,0 <enter><enter>
LINE <enter>
62,4 <enter>
@4<90 <enter>
@12<180 <enter>
@4<270 <enter><enter>
C. PERSPEKTIF
Ketikan perintah-perintah di bawah ini satu persatu untuk membuat perspektif gambar sambungan kayu bibir lurus.
LINE <enter>
0,30 <enter>
@8<90 <enter>
@10<330 <enter>
@4<270 <enter>
@20<330 <enter>
@4<270 <enter>
0,30 <enter><enter>

LINE <enter>
0,38 <enter>
@12<30 <enter>
@10<330 <enter>
@4<270 <enter>
@20<330 <enter>
@4<270 <enter>
@30<150 <enter>
@8<90 <enter><enter>
Gunakan kembali perintah LINE untuk menghubungkan setiap titik pojok dari obyek sisi depan dan belakang sehingga menjadi gambar berikut ini.
LINE <enter>
20,50 <enter>
@4<90 <enter>
@30<330 <enter>
@8<270 <enter>
@10<150 <enter>
@4<90 <enter>
20,50 <enter><enter>

LINE <enter>
20,54 <enter>
@12<30 <enter>
@30<330 <enter>
@8<270 <enter>
@10<150 <enter>
@4<90 <enter>
@20<150 <enter>
@4<90 <enter><enter>
Gunakan kembali perintah LINE untuk menghubungkan setiap titik pojok dari obyek sisi depan dan belakang sehingga menjadi gambar berikut ini.
Silahkan mengembangkan langkah-langkah diatas sehingga menghasilkan gambar sambungan kayu bibir lurus seperti dibawah ini:
Selamat mencoba!
Silahkan unduh ebook
Tutorial AutoCAD – Gambar Sambungan Kayu Bibir Lurus
dalam bentuk pdf dengan klik download dibawah ini:
………………………………………………………………………………………………………………
Berikut kursus CAD yang sudah selesai dilaksanakan
(klik untuk membaca ulasan setiap kegiatan!!!)
![]()
………………………………………………………………………………………………………………
Belajar Gratis Tutorial AutoCAD Dasar
- Rendering Rumah Bertingkat Bagian 1 – Pemilihan Material
- Rendering Rumah Bertingkat Bagian 2 – Penerapan Material
- Rendering Rumah Bertingkat Bagian 3 – Posisi Kamera
- Rendering Rumah Bertingkat Bagian 4 – Konfigurasi Rendering
- Rumah Tinggal Bagian 1 – Denah
- Rumah Tinggal Bagian 2 – Tampak Depan dan Belakang
- Rumah Tinggal Bagian 3 – Tampak Samping Kanan dan Kiri
- Rumah Tinggal Bagian 4 – Pondasi Batu Kali
- Rumah Tinggal Bagian 5 – Potongan A-A
- Rumah Tinggal Bagian 6 – Potongan B-B
- Rumah Tinggal Bagian 7 – Potongan C-C
- Pos Jaga Bagian 1 – Denah
- Pos Jaga Bagian 2 – Atap
- Pos Jaga Bagian 3 – Tampak Belakang
- Pos Jaga Bagian 4 – Tampak Depan
- Pos Jaga Bagian 5 – Tampak Kiri Kanan
- Pos Jaga Bagian 6 – 3 Dimensi
- Pos Jaga bagian 7 – Rendering
- Tugas CAD 1 – Circle – Trim (RockerArm)
- Tugas CAD 2 – Polygon, Circle, Line, Copy, Trim, Array
- Tugas CAD 3 – Circle, Line, Copy, Trim, Move, Rotate
- Tugas CAD 4 – Region, Extrude, Subtract, Fillet
- Tugas CAD 5 – Box, Wedge, Cylinder (CrusherKnife)
- Tugas CAD 6 – Sphere, Cylinder, Cone, Box
- Fillet 3D
- Sambungan Kayu – Bibir Lurus
………………………………………………………………………………………………………………
Tutorial Building Information Modeling (BIM) untuk Pemula
Pemodelan 3D Jembatan Gelagar Beton Bertulang
Penulangan Pelat Lantai Kendaraan Jembatan 25 meter














































































































seandainya kita bikin balok kayu ukuran 2/4 cm,,,,,kalau kta bikin 3 dimensi didepannya kita bikin 2 cm n disamping y kita bkin 4 cm juga, skrng posisi mata kita depan sudut?,,,,,,,,,,,,,,bntuin jwby y sobb…thsss.
salam kenal..
maaf tanya ttg software Draftsight pak, itu software tdk untuk komersial ya..kok saya baru tahu skrg ada software Draftsight.
mirip dg produk nya Autodesk.
thanks
bisa buat komersil juga kok.. itu yang bikin saingannya autodesk makanya mungkin dikasih free penggunaannya.
Terimakasih mas Koes, ijin copast nih, buat belajar…! semoga Allah membalas kebaikan mas Koes!
Amiiiiiin… silahkan pak, selamat belajar
ijin copy kang !!!mksih sblmnya & mdh2n Allah membalas kebaikan bp. amiin
silahkan.. silahkan…. terimkasih do’anya… amiiiin
Ijin copas y mas.. mau blajar.. trims
silahkan… selamat belajar ya
ijin kopi juga ya mas. semoga bermanfaat
silahkan mba evi… semoga bermanfaat ya…
terimakasih mas, bermanfaat aamiin
Senang jika memang bermanfaat…
ijin copas bro
silahkan… semoga bermanfaat