Breaking News

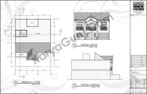
Gambar Kerja Rumah Tinggal Kemal

Tambah satu lagi karya gambar kerja rumah tinggal 2 lantai. Gambar kerja ini dibuat untuk pengajuan tahap awal yang kemungkinan akan ada revisinya. Desain di buat oleh salah satu rekan guru (Pak Sudarmanto) di sekolah dengan menggunakan skecthup dan saya melanjutkan dengan autocad untuk proses gambar kerjanya.

Pada saat kolaborasi sesama guru seperti ini dimana ada proses diskusi mengenai pengerjaan suatu proyek, terasa saling melengkapi kekurangan dengan kelebihan masing-masing yang dilatarbelakangi pengalaman pribadi. Mungkin inilah proses upgrade skill guru yang kegiatannya tidak hanya mengajar berlandaskan teori dari buku melainkan ditambah dengan pengalaman mengerjakan proyek. Sehingga peserta didik diharapkan mendapatkan pelajaran yang sesuai dengan kondisi di dunia kerja saat ini dengan adanya guru yang mempunyai kegiatan terjun langsung dengan kondisi di industri yang terkait.

Berikut ini beberapa gambar yang sudah diselesaikan:

………………………………………………………………………………………………………………

Berikut kursus CAD yang sudah selesai dilaksanakan
(klik untuk membaca ulasan setiap kegiatan!!!)

3D AutoCAD Perumahan

2D AutoCAD Mechanical

3D AutoCAD Manufacturing

2D-3D AutoCAD Interior

2D-3D AutoCAD Hotel Ibis

3D AutoCAD Curtainwall

Media Belajar Sketchup

AutoCAD 2D & 3D Warnet

2D 3D CADD Building

3D Animasi 1

3D Animasi 2

3D Autocad Skecthup

2D AutoCAD Arsitektur

2D AutoCAD Outdoor

3D AutoCAD Outdoor

2D AutoCAD 7Eleven

2D AutoCAD Beji Depok

3D AutoCAD ZOE Cafe

3D AutoCAD Curtainwall

AutoCAD Tamini Square

2D AutoCAD Giant Depok

3D AutoCAD Tole Iskandar

2D – 3D AutoCAD PNJ Depok

2D-3D AutoCAD PasarSegar

2D AutoCAD Equity Tower

2D AutoCAD KFC LentengAgung

AutoCAD Interior Dunkin’Donuts

2D AutoCAD SipiRock Coffee

Kursus Interior AutoCAD Papirus

Kursus Arsitektur KFC Depok

AutoCAD Tower Lubang Buaya

AutoCAD Arsitek PosPengumben

AutoCAD IndomaretPoint Tebet

AutoCAD BotaniSquare Bogor

AutoCAD Mampang Prapatan

AutoCAD Burgerking Bogor

AutoCAD Rigging McD Tebet

AutoCAD TanjungBarat

AutoCAD Limo Depok

AutoCAD StartBucks Cideng

2D-3D AutoCAD Ciomas Bogor

AutoCAD Interior GreenTebet

AutoCAD KFC TaminiSquare

AutoCAD Plaza Kemang88

AutoCAD 3D PdkGede

AutoCAD WarungKopi Sruput

AutoCAD KFC MargondaDepok

AutoCAD NgopiDoeloe Bandung

AutoCAD Bondongan Bogor

AutoCAD Interior Mampang

AutoCAD GunungBatu Bogor

AutoCAD Pesona Khayangan

AutoCAD 3D Rendering Bogor

AutoCAD TipTop Depok

AutoCAD Dunkin TaminiSquare

AutoCAD 3D Rendering Soerabi

AutoCAD Kp.Makasar Jaktim

AutoCAD A&W TMII Jaktim

AutoCAD Cawang Jaktim

AutoCAD J.Co TamanMini

AutoCAD Jatimakmur Bekasi

AutoCAD Bukitduri Tebet

AutoCAD Pluit Jakarta

AutoCAD Intirub Halim

AutoCAD Tebet Jaksel

AutoCAD Kalibaru Bekasi

AutoCAD Cibitung Bekasi

AutoCAD SMKN56 Jakarta

AutoCAD GrandWisata Bekasi

AutoCAD Cipayung Jakarta

AutoCAD 3D Rendering

AutoCAD Universitas Trisakti

AutoCAD Jagakarsa JakSel

AutoCAD Summarecon Bekasi

AutoCAD Cikarang Bekasi

AutoCAD Ciluer Bogor

AutoCAD PondokBambu Jakarta

AutoCAD Grundfos Pompa

AutoCAD McDonald Cinere

AutoCAD Kompas Gramedia

CAD YellowTruck Coffee

AutoCAD SipiRock Coffee

AutoCAD J.CO MargoCity

AutoCAD ExTimah Pancoran

AutoCAD BojongGede Bogor

AutoCAD Lodan Ancol

AutoCAD Ceger Cipayung

AutoCAD KebayoranBaru Jakarta

AutoCAD Kaliabang Bekasi

AutoCAD Cibinong Bogor

AutoCAD Kalibata Jakarta

AutoCAD Srengseng Jakarta

AutoCAD Bantarjati Bogor

AutoCAD Perpus UI Depok

CAD SyahabaCoffee Bogor

AutoCAD Kalibata City

Kursus AutoCAD 2D & 3D Rendering

………………………………………………………………………………………………………………

Belajar Gratis Tutorial AutoCAD Dasar

………………………………………………………………………………………………………………

Tutorial Building Information Modeling (BIM) untuk Pemula 

Pemodelan 3D Jembatan Gelagar Beton Bertulang

Nemetschek Allplan BIM Pemodelan 3D Jembatan

Penulangan Pelat Lantai Kendaraan Jembatan 25 meter

Tutorial Allplan Penulangan Pelat Lantai Jembatan

Pembesian Dinding Sandaran Jembatan Beton Bertulang 25m

Tutorial BIM Allplan 2021 - Pembesian Dinding Jembatan Gelagar Beton Bertulang 25m

Detail Tulangan Balok Gelagar Induk Jembatan 25 meter

23 Comments on Gambar Kerja Rumah Tinggal Kemal

  1. hem… tetep semangat mas,
    gambar hasilnya di perbesar dong, biar jelas.. 😀

  2. Wow. Mas Koes, itu yang terakhir desain apa ya? Penampang apa?

  3. udah kelar nihh kayaknya pak …

  4. waw.. pengen bisa autocad saya, tapi payah kelihatanya kalo gak paham struktur bangunan seperti itu?

  5. wuis.. kereeen…. tutorialnya donk…

  6. hahahaha koeshariatmo ini sbner’a pak ari bkan sih, ky’a ngliat poto’a knal nih, jd inget prmainan otak dlu yg d ajarin pk ari,,,,
    hehehehe
    seruuu!!!

  7. gan bza minta file gambarnya yang paling besar gak buat referensi coz kekecilan gan.. thanks.. sukses..

  8. okey..
    makasih gan..
    sukses buat karya-karyanya..
    amin..

  9. Gmn gan bza tidak soalnya mau ane buat referensi tugas gan buat hari senin??
    maaf sebelumnya.. Terimakasih.. Sukses..

  10. oh gak papa gan..
    ya ni masih butuh gan..
    ane tunggu ya..
    thanks..
    sukses..

  11. mana gan gambarnya..
    ane tunggu..

  12. mana gan gambarnya..
    ane tunggu..
    thanks..
    sukses..

  13. gan gambarnya mana..
    ane tunggu..
    thanks..
    sukses..

Leave a comment