Kursus Private AutoCAD 2D & 3D – Interior Design
Melanjuti dari pertemuan kursus private autocad sebelumnya, materi kursus autocad berlanjut ke gambar kerja interior design. Peralihan materi dimana sebelumnya peserta lebih memilih belajar menggambar fasade bangunan, sekarang ingin mengembangkan kasus belajarnya ke bidang desain interior dikarenakan latar belakang pendidikannya berkenaan dengan desain grafis… “lebih nyambung ke interior design ketimbang gambar curtainwall“, katanya.
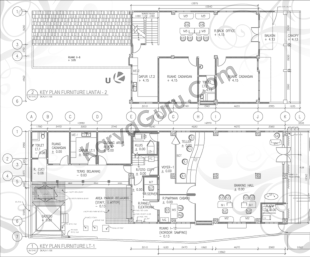
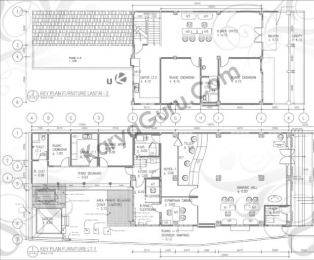
Untuk belajar AutoCAD 2 Dimensi, alangkah baiknya dimulai dengan denah ruangan yang memang banyak perintah dasar yanga digunakan. Kelengkapan gambar berupa notasi dan dimensi menjadi salah satu perhatian khusus untuk menyelesaikan gambar denah.
Latihan gambar berikutnya membuat layout area teller yang melibatkan lebih banyak detail komponen dari desain interior.
Dilanjutkan membuat tampak backdrop dan potongan area teller. disinilah ketelitian mulai dilatih karena komponennya kecil-kecil dan bervariasi.
Untuk proses 3d modeling dari area teller tidak terlalu sulit, karena dari gambar detail yang sudah dibuat sangat membantu dalam pembuatannya. Hanya menambahkan sedikit kreatifitas dalam kelengkapan model dari area teller seperti lampu, meja dan bangku.
Ini dia proses yang paling memakan waktu… memberi jenis bahan (material) pada setiap 3d model yang ada. Dalam pemberian setiap material dibutuhkan kesabaran pada konfigurasi skala dan jenis material. Untuk memudahkan dalam proses ini, 3d model yang sejenis dikelompokan dalam satu layer atau bisa juga di group. Peserta lebih sering menggunakan Isolate Objects untuk menyembunyikan sementara obyek-obyek yang mengganggu pandangan.
dan terakhir proses rendering… ini dia yang ditunggu-tunggu… terasa terpuaskan jika hasil dari pembuatan 3d modeling yang lumayan melelahkan hingga pemberian material dan camera yang butuh kesabaran, terlihat dalam tampilan realistik yang menghibur mata. Biasanya tidak akan pernah puas dengan konfigurasi yang dibuat untuk menghasilkan hasil gambar render autocad yang lebih baik.
Hasil akhir belajar rendering AutoCAD:
Semoga ilmunya bermanfaat ya dan dikembangkan terus.. salam!
………………………………………………………………………………………………………………
Berikut kursus CAD yang sudah selesai dilaksanakan
(klik untuk membaca ulasan setiap kegiatan!!!)
![]()
………………………………………………………………………………………………………………
Belajar Gratis Tutorial AutoCAD Dasar
- Rendering Rumah Bertingkat Bagian 1 – Pemilihan Material
- Rendering Rumah Bertingkat Bagian 2 – Penerapan Material
- Rendering Rumah Bertingkat Bagian 3 – Posisi Kamera
- Rendering Rumah Bertingkat Bagian 4 – Konfigurasi Rendering
- Rumah Tinggal Bagian 1 – Denah
- Rumah Tinggal Bagian 2 – Tampak Depan dan Belakang
- Rumah Tinggal Bagian 3 – Tampak Samping Kanan dan Kiri
- Rumah Tinggal Bagian 4 – Pondasi Batu Kali
- Rumah Tinggal Bagian 5 – Potongan A-A
- Rumah Tinggal Bagian 6 – Potongan B-B
- Rumah Tinggal Bagian 7 – Potongan C-C
- Pos Jaga Bagian 1 – Denah
- Pos Jaga Bagian 2 – Atap
- Pos Jaga Bagian 3 – Tampak Belakang
- Pos Jaga Bagian 4 – Tampak Depan
- Pos Jaga Bagian 5 – Tampak Kiri Kanan
- Pos Jaga Bagian 6 – 3 Dimensi
- Pos Jaga bagian 7 – Rendering
- Tugas CAD 1 – Circle – Trim (RockerArm)
- Tugas CAD 2 – Polygon, Circle, Line, Copy, Trim, Array
- Tugas CAD 3 – Circle, Line, Copy, Trim, Move, Rotate
- Tugas CAD 4 – Region, Extrude, Subtract, Fillet
- Tugas CAD 5 – Box, Wedge, Cylinder (CrusherKnife)
- Tugas CAD 6 – Sphere, Cylinder, Cone, Box
- Fillet 3D
- Sambungan Kayu – Bibir Lurus
………………………………………………………………………………………………………………
Tutorial Building Information Modeling (BIM) untuk Pemula
Pemodelan 3D Jembatan Gelagar Beton Bertulang
Penulangan Pelat Lantai Kendaraan Jembatan 25 meter













































































































Leave a comment