Breaking News

Kursus Private AutoCAD 3D di Cipinang Asem Jakarta Timur

Kemarin merupakan pertemuan ke-3 dari kursus private autocad 3d dengan materi CurtainWall & AluminiumWindow yang di laksanakan di cipinang asem jakarta timur  Materi disesuaikan dengan kebutuhan peserta yang saat ini sedang bekerja di salah satu kontraktor architectural aluminium facade dan ditempatkan di proyek office & apartement yang sedang dibangun di wilayah pancoran jakarta selatan.

Kursus AutoCAD 3D Curtainwall Realistic

Dari detail gambar kerja yang ada di buat 3d model dari curtainwall. Aktifitas pekerjaan sebagai supervisor di proyek saat ini sangat membantu dalam memahami setiap detail dari komponen curtainwall, sehingga proses pembuatan 3D modelnya lebih teliti.

Kursus AutoCAD 3D Curtainwall 2DWireframe

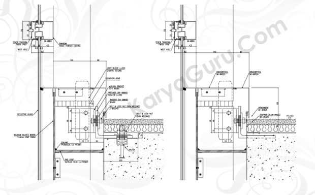
Dalam proses pembuatan 3d model curtainwall dibuat secara bertahap dari setiap part, dimulai dari Halfen, Fastener, Bolt & Lock Nut, Bracket, Mullion, Expansion Joint, Joint Sleeve, Transom, Cover Transom, Refelective Glass, Fire Stop, Stopper hingga WindowsTool.

Kursus AutoCAD 3D Curtainwall

Untuk tantangan dalam proses pembuatannya salah satunya adalah peletakan posisi setiap partnya agar presisi dengan part lainnya. Butuh teknik khusus dalam perintah AutoCAD-nya agar lebih mudah… salut juga PR yang diberikan dikerjakan dengan susah payah.. hehehhee..

Kursus Private AutoCAD 3D

Pada pertemuan ketiga ini, berikut gambar yang sudah di selesaikan:

Kursus AutoCAD 3D Curtainwall Jakarta

https://karyaguru.com/wp-content/uploads/2014/03/kursus-shopdrawing-curtainwall-detail.jpg

Kursus AutoCAD 3D Model Curtainwall Jakarta

………………………………………………………………………………………………………………

Berikut kursus CAD yang sudah selesai dilaksanakan
(klik untuk membaca ulasan setiap kegiatan!!!)

3D AutoCAD Perumahan

2D AutoCAD Mechanical

3D AutoCAD Manufacturing

2D-3D AutoCAD Interior

2D-3D AutoCAD Hotel Ibis

3D AutoCAD Curtainwall

Media Belajar Sketchup

AutoCAD 2D & 3D Warnet

2D 3D CADD Building

3D Animasi 1

3D Animasi 2

3D Autocad Skecthup

2D AutoCAD Arsitektur

2D AutoCAD Outdoor

3D AutoCAD Outdoor

2D AutoCAD 7Eleven

2D AutoCAD Beji Depok

3D AutoCAD ZOE Cafe

3D AutoCAD Curtainwall

AutoCAD Tamini Square

2D AutoCAD Giant Depok

3D AutoCAD Tole Iskandar

2D – 3D AutoCAD PNJ Depok

2D-3D AutoCAD PasarSegar

2D AutoCAD Equity Tower

2D AutoCAD KFC LentengAgung

AutoCAD Interior Dunkin’Donuts

2D AutoCAD SipiRock Coffee

Kursus Interior AutoCAD Papirus

Kursus Arsitektur KFC Depok

AutoCAD Tower Lubang Buaya

AutoCAD Arsitek PosPengumben

AutoCAD IndomaretPoint Tebet

AutoCAD BotaniSquare Bogor

AutoCAD Mampang Prapatan

AutoCAD Burgerking Bogor

AutoCAD Rigging McD Tebet

AutoCAD TanjungBarat

AutoCAD Limo Depok

AutoCAD StartBucks Cideng

2D-3D AutoCAD Ciomas Bogor

AutoCAD Interior GreenTebet

AutoCAD KFC TaminiSquare

AutoCAD Plaza Kemang88

AutoCAD 3D PdkGede

AutoCAD WarungKopi Sruput

AutoCAD KFC MargondaDepok

AutoCAD NgopiDoeloe Bandung

AutoCAD Bondongan Bogor

AutoCAD Interior Mampang

AutoCAD GunungBatu Bogor

AutoCAD Pesona Khayangan

AutoCAD 3D Rendering Bogor

AutoCAD TipTop Depok

AutoCAD Dunkin TaminiSquare

AutoCAD 3D Rendering Soerabi

AutoCAD Kp.Makasar Jaktim

AutoCAD A&W TMII Jaktim

AutoCAD Cawang Jaktim

AutoCAD J.Co TamanMini

AutoCAD Jatimakmur Bekasi

AutoCAD Bukitduri Tebet

AutoCAD Pluit Jakarta

AutoCAD Intirub Halim

AutoCAD Tebet Jaksel

AutoCAD Kalibaru Bekasi

AutoCAD Cibitung Bekasi

AutoCAD SMKN56 Jakarta

AutoCAD GrandWisata Bekasi

AutoCAD Cipayung Jakarta

AutoCAD 3D Rendering

AutoCAD Universitas Trisakti

AutoCAD Jagakarsa JakSel

AutoCAD Summarecon Bekasi

AutoCAD Cikarang Bekasi

AutoCAD Ciluer Bogor

AutoCAD PondokBambu Jakarta

AutoCAD Grundfos Pompa

AutoCAD McDonald Cinere

AutoCAD Kompas Gramedia

CAD YellowTruck Coffee

AutoCAD SipiRock Coffee

AutoCAD J.CO MargoCity

AutoCAD ExTimah Pancoran

AutoCAD BojongGede Bogor

AutoCAD Lodan Ancol

AutoCAD Ceger Cipayung

AutoCAD KebayoranBaru Jakarta

AutoCAD Kaliabang Bekasi

AutoCAD Cibinong Bogor

AutoCAD Kalibata Jakarta

AutoCAD Srengseng Jakarta

AutoCAD Bantarjati Bogor

AutoCAD Perpus UI Depok

CAD SyahabaCoffee Bogor

AutoCAD Kalibata City

Kursus AutoCAD 2D & 3D Rendering

………………………………………………………………………………………………………………

Belajar Gratis Tutorial AutoCAD Dasar

………………………………………………………………………………………………………………

Tutorial Building Information Modeling (BIM) untuk Pemula 

Pemodelan 3D Jembatan Gelagar Beton Bertulang

Nemetschek Allplan BIM Pemodelan 3D Jembatan

Penulangan Pelat Lantai Kendaraan Jembatan 25 meter

Tutorial Allplan Penulangan Pelat Lantai Jembatan

Pembesian Dinding Sandaran Jembatan Beton Bertulang 25m

Tutorial BIM Allplan 2021 - Pembesian Dinding Jembatan Gelagar Beton Bertulang 25m

Detail Tulangan Balok Gelagar Induk Jembatan 25 meter

2 Comments on Kursus Private AutoCAD 3D di Cipinang Asem Jakarta Timur

  1. Gan mau ikutan belajar dong? Masih awam bgt nih sama AutoCad kebetulan tinggal di JakTim

1 Trackback / Pingback

  1. Kursus Private AutoCAD 2D & 3D – Interior Design | KARYAGURU CENTER

Leave a comment